Project: TTM NE Expansion | Traffic Impact Study
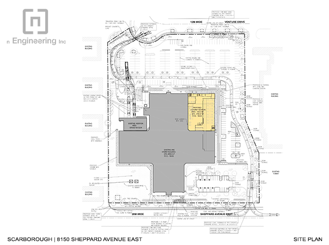
Address: 8150 Sheppard Avenue East, Toronto, ON
Status: Traffic Study Completed – May 2023
n Engineering Inc. was retained to conduct a Traffic Impact Study (TIS) in support of the proposed industrial expansion of TTM Technologies in Toronto. The site, located at 8150 Sheppard Avenue East, includes a new 3-storey addition totaling approximately 3,766 m² to the existing 9,290 m² industrial facility, along with 287 parking spaces.
The scope of the traffic study included:
- Analysis of six key intersections in the surrounding area
- Assessment of existing and projected traffic volumes for weekday AM and PM peak periods
- Synchro-based modeling using HCM 6 methodology
- Recommendations for signal timing improvements where applicable
Situated at the corner of Sheppard Avenue East and Venture Drive, the development is well-connected by arterial roads, bicycle lanes, and TTC transit routes. The study evaluated traffic conditions through to the year 2030, accounting for future background growth and nearby planned developments including the impact of site generated traffic.
Key findings indicated that all unsignalized intersections currently operate at a Level of Service (LOS) of C or better. While some turning movements at signalized intersections (particularly at Morningside Avenue and Sheppard Avenue East) exhibited delays and high volume-to-capacity (v/c) ratios, the overall network continues to function acceptably with residual capacity.
To ensure long-term efficiency and mitigate localized congestion, n Engineering Inc. recommended signal timing adjustments at Morningside & Sheppard Ave intersection. These changes aim to optimize flow during peak hours and enhance overall traffic performance.
The study demonstrates n Engineering Inc. continued commitment to supporting sustainable, efficient development across the GTA. By proactively addressing traffic concerns, our team helped ensure that the TTM NE expansion integrates smoothly with the surrounding infrastructure.


Synchro Video






